Contact
Book a Visit
Get Directions
Brochure Download

Flagship Office Space to Rent in Bristol

At One Brabazon Gateway, BS34

Large Office To Rent In Bristol

Designed for Work & Wellbeing

Communal Roof Terrace

Outdoor space for fresh air, informal meetings and events.

Club Lounge

A stylish breakout area for collaboration and networking.

Fitness Studio

On-site facilities to support health and wellbeing at work.

Ample Parking

Access to 1,650 parking spaces for staff and visitors.

Building Specification

• Communal Roof Terrace and Club House
• Fitness Studio
• Double Height Lounge Reception
• 4 Destination Controlled Passenger Lifts
• 16 Showers, Lockers and Changing Facilities
• Dedicated Cycle Entrance
• Indoor Secure Cycle Storage (152 Bicycles)
• Full Height Glazed Atrium
• 24/7 Access & Security
• Concierge Service
• Fully-Electric, Renewable-Powered Building

Office Specification

• Options for Cat A, Cat A+ or Fully Fitted
• VRF Air-Conditioning (1:8 sq m)
• Floor to Ceiling Height (3.1m)
• Fully Accessible Raised Floor
• LED Lighting with PIR Sensors
• Exposed Services with Optional Suspended Ceiling
• Full Height Double Glazing

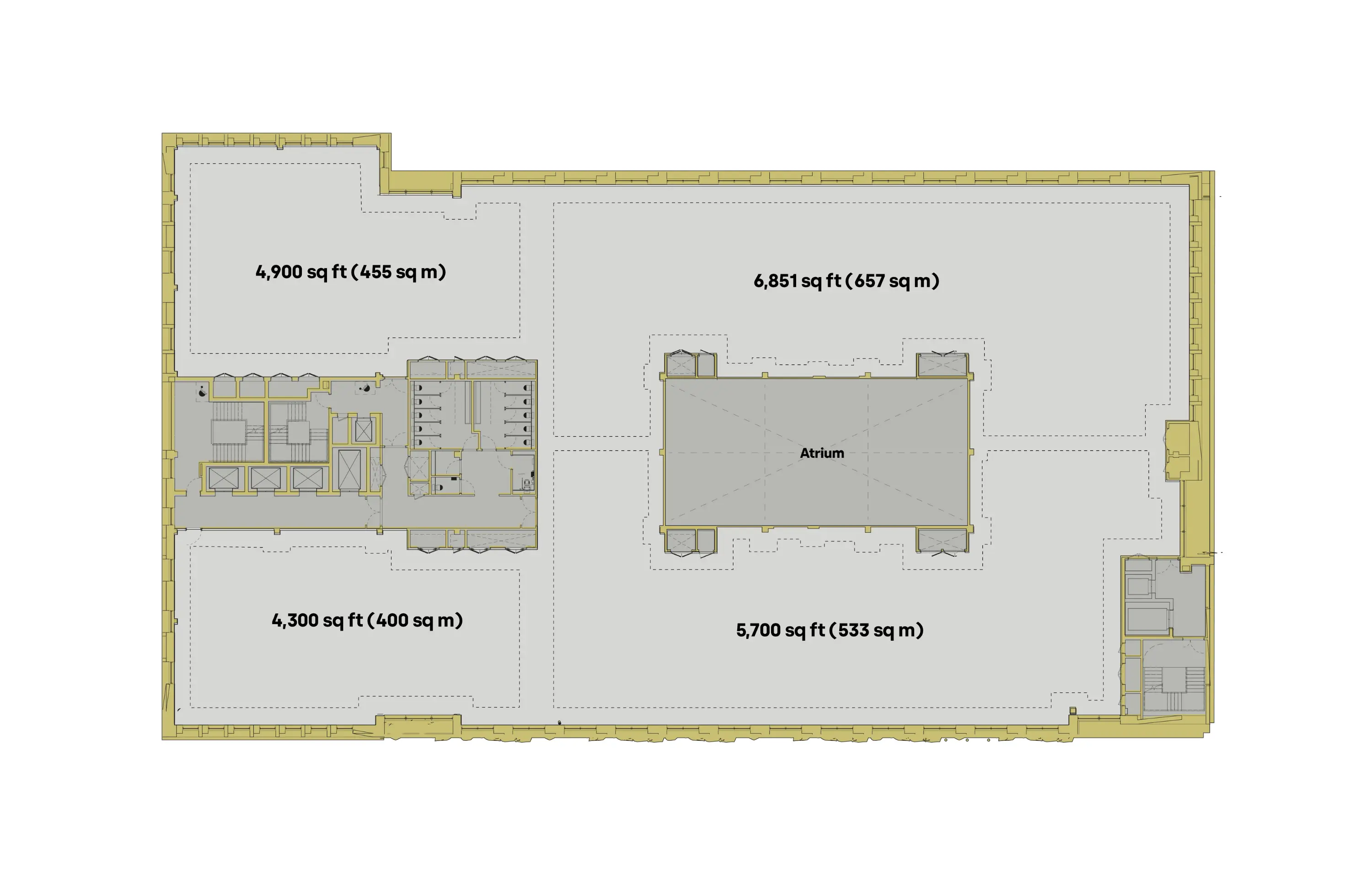
Floorplan
One Brabazon Gateway

Flexible layouts from 4,300 sq ft to 21,750 sq ft, giving you the freedom to scale and adapt.

Show dimensions in:
Feet
Metres
Rooms
4,300 - 123,000
400 - 114,300
1st Floor
17,000
1,579
2nd Floor
21,750
2,045
3rd Floor
21,750
2,045
4th Floor
21,750
2,045
5th Floor
21,750
2,045
6th Floor
19,600
1,820

Designed for a Greener Future

One Brabazon Gateway sets a new benchmark for environmental performance and digital connectivity. 

Every detail is engineered to support a healthier, lower-carbon way of working – from energy efficiency and smart infrastructure to sustainable design principles.

And with no other new Grade A office buildings currently under construction in Bristol, this is a rare opportunity to secure future-ready space that puts your business ahead of the curve.

  • Grade A office accommodation

  • EPC A rating for energy efficiency

  • BREEAM Outstanding for sustainable design

  • NABERS 5* for operational energy performance

  • WiredScore Platinum for digital infrastructure

  • SmartScore Gold for digital functionality

A Workspace Designed for People

Everything is designed to make coming into the office feel like a pleasure. From the moment your team arrives, they’ll experience a workplace that’s welcoming, well-connected and full of life.

With secure cycle storage, showers and wellness amenities, active commuting is easy and encouraged. Rooftop spaces offer fresh air and informal settings for meetings or team catch-ups, while direct access to Waitrose and nearby street food means everyone will be looking forward to lunch breaks. And with Brabazon’s new public park just a short walk away, there’s always space to breathe, recharge and reconnect with nature.

This is a workplace that supports your team’s wellbeing, encourages collaboration, and makes every day more enjoyable – helping you bring people back together and build a thriving business culture.

Travel

Cycle storage, showers and wellness amenities to support active commuting.

Connect

Rooftop space for informal meetings, fresh air and team events, plus proximity to conferencing venues.

Shop

Direct access to retail and leisure attractions, including Waitrose and nearby street food.

Breathe

Easy access to green space, including Bristol's biggest new public park.

A Best-In-Class, Grade A Commercial Building

Space for Ambition

123,000 sq ft of high-spec workspace designed for growth.

Flexible Floorplates

Individual floorplates up to 21,750 sq ft, with options from 4,300 sq ft.

Sustainability First

EPC A, BREEAM Outstanding & NABERS 5* for a greener future.

Digital Connectivity

WiredScore Platinum & SmartScore Gold for seamless, secure connections.

Ample Parking

Access to over 1,650 parking spaces for staff and visitors.

Unrivalled Connectivity

Minutes from the new Brabazon Station, opening Autumn 2026.

In Good Company

Part of a thriving commercial cluster in Bristol’s new city district.

On Your Doorstep

Green spaces, cafes and leisure just moments away.

Our Commercial Agents

Get in Touch

Find Your Space

Walk in the footsteps of the pioneers of Bristol’s past and join the generation shaping the future of the city with a new workspace at Brabazon.

Contact our commercial agents or complete the form to enquire about commercial opportunities at Brabazon today. We will use your information to follow up on your enquiry by phone and email. We will also send you promotional emails about Brabazon, including the monthly newsletter.

You can unsubscribe at any time. Please see our Privacy Policy for details.

Enquire
Download

Other Office Accommodation at Brabazon

Explore the other available office spaces to rent at Brabazon.

Office Space at The Interchange

Discover up to 86,300 sq ft of flexible workspace to let directly above the new train station at Brabazon.

Container Offices at Boxworks

Discover affordable small offices and studio space in Boxworks' iconic shipping container offices.

Important Information

The dates, information and imagery published on this website faithfully describe the vision for Brabazon at the time of publication. All are part of the masterplan for Brabazon and include buildings and landscaping which will take a number of years to complete and some of which remain subject to planning.

While all information has been provided in good faith and every effort has been made to ensure accuracy, YTL Developments (UK) Ltd and YTL Homes Ltd retain the right to change any and all details of the development at Brabazon at any time.

Computer-generated images (CGIs) and stock photography/videography have been used to illustrate the website and are indicative only.